你見過“31度灰”的商業&藝術空間么?
- 發布時間:2022-05-25
- 發布者: 本站
- 來源: 原創
- 閱讀量:
時尚商品都可以被看作藝術品。而業主也正是用一種藝術化的品味在經營這個品牌。與業主的第一次交流便明確了設計方向:我們要用“藝術館”(Gallery)的方式來設計時尚買手店。同時利用最經典的水磨石花色——Mo?意大利灰時尚水磨石來進行墻地面的改造,與“31度灰”的主色調相契合,粗獷而富有張力。
話不多說,讓我們一起來看看吧!

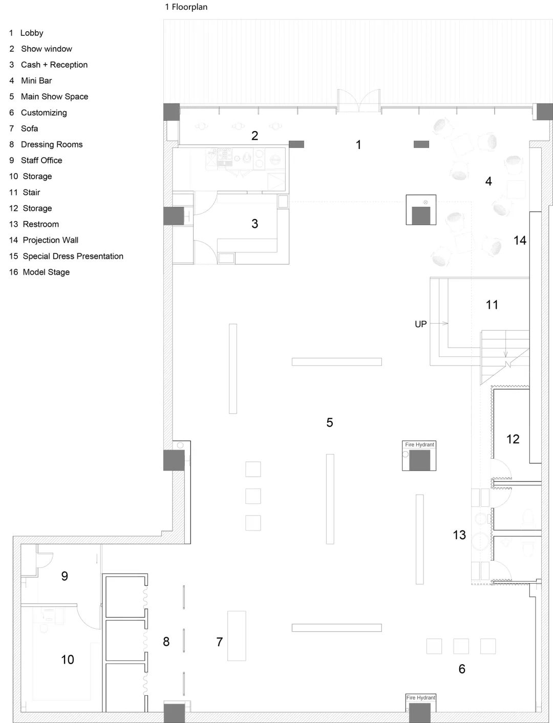
TAG是一個多品牌的融合空間,售賣男、女裝及配飾;風格上既有正式禮服,又有街頭風潮衣;既有走秀需求,又有咖啡吧。頭腦風暴中我們找到一種“比擬”的空間修辭,通過它,TAG的設計雛形便清晰可見。
藝術館”的主題使我們終于有機會嘗試純灰色空間,不同灰色系材料呈現出豐富的層次和質感。在材質組合搭配上,通過不同材質間的對比則形成一種有張力的戲劇化效果,使得空間的質感豐富且細膩。毛氈、Mo?意大利灰時尚水磨石、花紋鋁板、波紋鋁板、清水混凝土、藝術涂料、木材和大理石等材料,在空間里交錯組合,共同營造了一個微妙的“灰”空間。

在自然光和人工照明的配合下,這個灰色的空間透出淡雅寧靜的氣質,猶如莫蘭迪的畫,靜謐而迷人。同時灰色“藝術館”空間所具有的儀式感和神秘感,使得陳列其中的商品獲得了藝術化的升華,增強了設計師服裝的品質感,有效的提升了人們的購物體驗。
樓梯的設計同樣也借鑒了”藝術館“的思路,使其成為空間的焦點。寬敞的樓梯空間一側,是一面連續的超大展墻,博物館級別的洗墻燈營造出“藝術館”的氛圍,空間將藝術和時尚緊密鏈接。
Mo?意大利灰時尚水磨石,取自意大利的意大利灰大理石紋理,低調優雅的灰色系點綴層次分明的白色紋路,簡約而不失大氣,呈現出獨有的貴族氣質,彰顯空間簡潔大方的美感。

意大利灰FCT612106L
精雕亮光墨水+蠟拋
600×1200mm


